If using libreoffice, open >view>web and save as .html


05


last

Tutorial 05 (was 02 Part c): Creating 2D Geometry

next


Tutorial 3 Part ag: Creating A Floor Plan



Step 1: downloading/saving opening an existing file



Task 1



Download/Save and open the file named ‘floorplanbase’



Steps



  1. Download this file floorplanbase and save to your preferred folder

  2. Start FreeCAD

  3. Navigate to your preferred folder

  4. Open the downloaded file in your preferred folder (by default this is normally a folder called downloads)



Notes on Construction mode and placing items in the construction folder



A note on construction mode and creating the building footprint



  • Select the Construction icon ( ); selecting this icon toggles whether objects created are construction lines (the shortcut for this tool is ’C’ then ‘M’)

  • You can also turn Draft objects like lines or rectangles into construction lines by selecting them and then selecting the Add Construction icon ( )

  • Construction lines are useful for getting the general shape of an object before committing to a shape. They also don’t have to be deleted later when plotting



Step 2 : creating the building footprint



  1. Press ‘P’ then ‘Y’ and select the following points in order; A, B, C, D, E, F, G, H, J, K, L, M, N, O, P, A to form a closed polygon (py1)

  2. Navigate to Combo View>Tasks>Polyline

  3. The >Tasks>Polyline dialogue will close when the Polyline forms a closed loop



Modifying the data of a Polyline



  1. Navigate to Combo View Model Data

  2. Select the Polyline again and press F2 or option-click the item and select rename on the menu that appears, to rename it

  3. Key in ‘py1’

  4. Note the Polyline will be in a group titled construction under Combo View>Model






Step 3: creating the roof and slab outlines



Creating the slab line with Polylines



  1. Press 'P 'then 'Y' and select the following points in order; A, B, C, D, E, F, G, H, I, K, L, A

  2. Select py1 in the Combo View under construction

  3. Press 'O' then 'S' or select the offset tool icon ( ), move the cursor inside the shape and key in 220 mm in Combo View>Tasks

  4. Rename the line to py3



Creating the roof line with Polylines



  1. Press 'P' then 'Y' and select the following points in order; A, B, C, D, E, F, G, H, I, K,L, A

  2. Select py1 in the Combo View under construction

  3. Press 'O' then 'S', move the cursor inside the shape and key in 220 mm in Combo View>Tasks

  4. Navigate to Combo View>Tasks and select the newly created Polyline. Press F2 to rename the item

  5. Rename the line to py3





  1. Select py3 and press 'O' then 'S'. Move the cursor outside of the shape, key in 300 mm in the task tab on the right of the screen and press ‘Enter‘

  2. Select the new line and rename it as py4

  3. Select Polyline py4 and press 'O' then 'S' enter 300 mm and press 'Enter' (make sure to hover the mouse outside of the boundaries of the selected line)

  4. Combo View>Model

  5. Select the newly created Polyline in the Combo View

  6. Option click the Polyline and select rename

  7. Type in ‘py5’



What are Blocks?



  • Blocks are a combination of Draft or Arch objects that do not touch or form closed loops with each other

  • Think of them as a less flexible folder containing multiple objects. Blocks are created by selecting objects and selecting the upgrade icon ( ) (assuming they don't form a closed loop or intersect with each other)



Moving and copying an existing Block



  1. Select the block object labelled 'wc/shower'

  2. Press 'M' then 'V' or select the Move tool icon( ) and select the left-most corner






Step 4: creating construction lines for the inner walls



  1. Press 'R' then 'E' and create Rectangles of the following dimensions (each representing the size of a room). Navigate and pan to the points using your preferred navigation style

  2. Press 'R' then 'E' or select the Rectangle icon ( ) with Point Snap on to ensure the Rectangle starts at the same exact point indicated below



Creating a rectangle as a base for the maid quarters






  1. Select the corner as shown in the image above

  2. Navigate to Combo View>Model and under Rectangle enter the following;

    • For Local ΔX input 3000 mm

    • For Local ΔY input 2300 mm

    • Leave Local ΔZ input as 0 mm

  1. Select enter point to confirm each option



Creating a Rectangle as a base for the maid quarters bathroom (part A)






  1. Press 'R' then 'E' or select the Rectangle icon ( )

  2. Select the corner shown above

  3. Navigate to Combo View>Model and under Rectangle enter the following:

    • For Local ΔX enter 1880 mm

    • For Local ΔY enter 1690 mm

    • Leave Local ΔZ as the default value

  1. Select enter point to confirm the coordinates



Creating a Rectangle as a base for the maid quarters bathroom (part B)



  1. Press 'R' then 'E' or select the Rectangle icon ( )

  2. Select the corner highlighted above

  3. Navigate to Combo View>Model under Rectangle enter the following:

    • For Local Δx enter 1010 mm

    • For Local Δy enter 1690 mm

    • Leave Local ΔZ as default

  1. Press 'Enter' confirming each option or select enter point when done entering

  2. Select the newly created Rectangle

  3. Press 'M' then 'V' or select the Move tool icon (Move tool icon )

  4. Select the corner previously selected

  5. Press 'X' (to restrict to x axis)

  6. For Local ΔX enter 110 mm (note the greying out of the Local ΔY fields and Local ΔZ this means the object is limited to movement in the x-axis direction) this is of course relative to the Working Plane)

  7. Select enter point or press 'Enter' to accept each part of the coordinates



Creating a Rectangle as a base for the maid quarters kitchen






  1. Press 'R' then 'E' or select the Rectangle icon (Rectangle tool icon )

  2. Select the corner highlighted above

  3. Navigate to Combo View>Model under Rectangle enter the following;

    • For Local ΔX enter 3000 mm

    • For Local ΔY enter 3500 mm

    • Leave Local ΔZ as default

  1. Press 'Enter' or select enter point after you are done entering coordinates

  2. Select the newly created Rectangle

  3. Press 'M' then 'V' or select the Move tool icon ( )

  4. Select the highlighted corner of the previously selected Rectangle

  5. Press 'X' on the keyboard (to restrict to the x-axis)

  6. For Local ΔX enter 220 mm

  7. Select enter point to accept



Creating a Rectangle as a base for the storage rooms





  1. Press 'R' then 'E' or select the Rectangle icon (Rectangle tool icon )

  2. Select the highlighted corner shown above

  3. Navigate to Combo View>Model and under Rectangle enter the following:

    • For Local ΔX enter 2400 mm

    • For Local ΔY enter 600mm

    • Leave Local ΔZ as default

  1. Select enter point

  2. Select the newly created Rectangle

  3. Press 'M' then 'V' or select the Move tool icon ( )

  4. Select the corner previously selected

  5. Press 'X' (to restrict to x axis)

  6. For Local ΔX enter 220 mm

  7. Select enter point or press ‘Enter’



Creating a Rectangle as a base for storage room 1 (part A)






  1. Press 'R' then 'E' or select the Rectangle icon (Rectangle tool icon )

  2. Select the corner highlighted above

  3. Navigate to Combo View>Model and under Rectangle enter the following;

    • For Local ΔX enter 490 mm

    • For Local ΔY enter -600mm

    • Leave Local ΔZ as default

  1. Select enter point

  2. Select the newly created Rectangle

  3. Press 'M' then 'V' or select the Move tool icon (Rectangle tool icon )

  4. Select the corner previously selected

  5. For Local ΔX enter 220 mm

  6. For Local ΔY enter -110 mm

  7. Select enter point or press 'Enter'



Creating a Rectangle as a base for storage room 1 (part B)





  1. Press 'R' then 'E' or select the Rectangle icon (Rectangle tool icon )

  2. Navigate to Combo View>Model and under Rectangle enter the following:

    • For Local ΔX enter 1800 mm

    • For Local ΔY enter 2400 mm

    • Leave Local ΔZ as default

  1. Press 'Enter' confirming each option or select enter point

  2. Select the newly created Rectangle

  3. Press 'M' then 'V' or select the Move tool icon (Move tool icon )

  4. Select the highlighted corner of the previously selected Rectangle

  5. Press 'X' (to restrict to x axis)

  6. For Local ΔX enter 110 mm

  7. Select enter point or press 'Enter'



Creating a Rectangle as a base for the bathroom






  1. Press 'R' then 'E' or select the Rectangle icon (Rectangle tool icon )

  2. Select the corner highlighted in the image above

  3. Navigate to Combo View>Model under Rectangle enter the following:

    • For Local ΔX enter 1800 mm

    • For Local ΔY enter 990 mm

    • Leave Local ΔZ as default

  1. Select enter point

  2. Select the Rectangle just created

  3. Press 'M' then 'V' or select the Move tool icon (Move tool icon )

  4. Select the corner previously selected

  5. Press 'Y' (to restrict to the y-axis)

  6. For Local ΔY enter 110 mm

  7. Select enter point or press 'Enter'



Creating a Rectangle as a base for the bathroom passage (Part A)






  1. Press 'R' then 'E' or select the Rectangle icon (Rectangle tool icon )

  2. Select the corner highlighted in the image above

  3. Navigate to Combo View>Model and under Rectangle enter the following:

    • For Local ΔX enter 1800 mm

    • For Local ΔY enter 990 mm

    • Leave Local ΔZ as default

  1. Select enter point

  2. Select the newly created Rectangle

  3. Press 'M' then 'V' or select the Move tool icon (Move tool icon )

  4. Select the corner previously selected

  5. Press 'Y' (to restrict to y axis)

  6. For Local ΔY enter 110 mm

  7. Select enter point



Creating a Rectangle as a base for the bathroom passage (part B)






  1. Press 'R' then 'E' or select the Rectangle icon (Rectangle tool icon )

  2. Select the corner highlighted in the image above

  3. Navigate to Combo View>Model and under Rectangle and enter the following:

    • For Local ΔX enter 600 mm

    • For Local ΔY enter 1800 mm

    • Leave Local ΔZ as default

  1. Select enter point



Creating a Rectangle as a base for storage room 2 (part A)






  1. Press 'R' then 'E' or select the Rectangle icon (Rectangle tool icon )

  2. Select the corner highlighted in the image above

  3. Navigate to Combo View>Model and under Rectangle enter the following;

    • For Local ΔX enter 600 mm

    • For Local ΔY enter 600 mm

    • Leave Local ΔZ as default

  1. Press 'Enter' confirming each option or select enter point

  2. Select the Rectangle you just created

  3. Press 'M' then 'V' or select the Move tool icon (Move tool icon )

  4. Select the corner previously selected

  5. Press 'X' (to restrict to x-axis)

  6. For Local ΔX enter 110 mm

  7. Select enter point or press 'Enter'



Creating a Rectangle as a base for storage room 2 (part B)






  1. Press 'R' then 'E' or select the Rectangle icon (Rectangle tool icon )

  2. Select the corner highlighted above navigate to Combo View>Tasks and under Rectangle enter the following;

    • For Local ΔX 600 mm

    • For Local ΔY enter -390 mm

    • Leave Local ΔZ as default

  1. Press 'Enter' confirming each option or select enter point

  2. Select the newly created Rectangle

  3. Press 'M' then 'V' or select the Move tool icon (Move tool icon )

  4. Select the corner previously selected

  5. Press 'X' (to restrict to the x-axis)

  6. For Local ΔX enter 110 mm

  7. Select enter point or press 'Enter’



Creating a rectangle as a base for the kitchen






Moving the Kitchen rectangle base






  1. Press 'R' then 'E' or select the Rectangle icon (Rectangle tool icon )

  2. Select the corner highlighted above

  3. Navigate to Combo View>Model and under Rectangle enter the following;

    • For Local ΔX enter 4000 mm

    • For Local ΔY enter -3100 mm

    • Leave Local ΔZ as default

  1. Press 'Enter' confirming each option or select enter point



Creating a Rectangle as a base for the garage





  1. Press 'R' then 'E' or select the Rectangle icon (Rectangle tool icon )

  2. Select the corner highlighted above

  3. Navigate to Combo View>Model> and under Rectangle enter the following;

    • For Local ΔX enter -5560 mm

    • For Local ΔY enter -3000 mm

    • Leave Local ΔZ as default

  1. Press 'Enter' confirming each option or select enter point



Creating a Rectangle as a base for the sitting room






  1. Press 'R' then 'E' or select the Rectangle icon (Rectangle tool icon )

  2. Select the corner highlighted above

  3. For Local ΔX 5030 mm

  4. For Local ΔY -4640 mm

  5. Leave Local ΔZ as default

  6. Press 'Enter' confirming each option or select enter point



Creating a Rectangle as a base for the dining room (part A)





  1. Press 'R' then 'E' or select the Rectangle icon (Rectangle tool icon )

  2. Select the corner highlighted

  3. For Local ΔX enter -3610 mm

  4. For Local ΔY enter -3000mm

  5. Leave Local ΔZ as default

  6. Press 'Enter' confirming each option or select enter point



Creating a Rectangle as a base for the dining room (part B)





  1. Press ‘R’ then ‘E’ or select the rectangle icon ( )

  2. Select the corner highlighted above

  3. For ‘Local ΔX enter -3610 mm

  4. For ‘Local ΔY enter -3000mm

  5. Leave local Δz as default

  6. Press 'Enter' confirming each option or select enter point



Creating a Rectangle as a base for the master bedroom (part A)





  1. Press 'R' then 'E' or select the Rectangle icon (Rectangle tool icon )

  2. Select the corner shown

  3. For Local ΔX enter -3610 mm

  4. For Local ΔY enter -3500 mm

  5. For Local ΔZ enter 0 mm

  6. Press 'Enter' confirming each option or select enter point



Creating a Rectangle base for the master bedroom (part B)





  1. Press 'R' then 'E' or select the Rectangle icon (Rectangle tool icon )

  2. Select the corner shown

  3. For Local ΔX enter -3610 mm

  4. For Local ΔY enter -3500 mm

  5. For Local ΔZ enter 0 mm

  6. Press 'Enter' confirming each option or select enter point



Creating a Rectangle base for the master bedroom (part B)





  1. Press 'R' then 'E' or select the Rectangle icon (Rectangle tool icon )

  2. Select the corner highlighted above

  3. For Local ΔX enter 2410mm

  4. For Local ΔY enter 1810mm

  5. For Local ΔZ enter 0 mm

  6. Press 'Enter' confirming each option or select enter point

  7. Select the newly created Rectangle

  8. Press 'M' then 'V' or select the Move tool icon (Move tool icon )

  9. Select the corner previously selected

  10. Press 'Y' (to restrict to Y axis)

  11. For Local ΔY enter 110 mm

  12. Selected enter point or press 'Enter'



Creating a Rectangle as a base for the master bedroom (part C)





  1. Press 'R' then 'E' or select the Rectangle icon (Rectangle tool icon )

  2. Select the corner highlighted above

  3. For Local ΔX enter 2400 mm

  4. For Local ΔY enter 1920 mm

  5. For Local ΔX enter 0 mm

  6. Press 'Enter' confirming each option or select enter point

  7. Select the newly created Rectangle

  8. Press 'M' then 'V' or select the Move tool icon (Move tool icon )

  9. Select the corner previously selected

  10. Press 'Y' (to restrict to y-axis)

  11. For Local ΔY enter 110 mm

  12. Selected enter point or press 'Enter'



Moving the Rectangle base for the master bedroom



file:///piw/data/cad/train/hartneyc/Modified%20scripts/html/fc-05/floorplan3.3.png

fix


  1. Press 'R' then 'E' or select the Rectangle icon (Rectangle tool icon )

  2. Select the corner highlighted

  3. For Local ΔX enter 2400mm

  4. For Local ΔY enter 600 mm

  5. for Local ΔZ enter 0 mm

  6. Press 'Enter' confirming each option or select enter point

  7. Select the newly created Rectangle

  8. Press 'M' then 'V' or select the Move tool icon (Move tool icon )

  9. Select the corner previously selected

  10. Press 'Y' (to restrict to Y axis

  11. For Local ΔY enter 110 mm

  12. Selected enter point or press 'Enter'



Creating a Rectangle as a base for the main passage





  1. Press 'R' then 'E' or select the Rectangle icon (Rectangle tool icon )

  2. Select the corner highlighted above

  3. For Local ΔX enter 2400mm

  4. For Local ΔY enter 600 mm

  5. For Local ΔZ enter 0 mm

  6. Press 'Enter' confirming each option or select enter point

  7. Select the newly created Rectangle

  8. Press 'M' then 'V' or select the Move tool icon (Move tool icon )

  9. Select the corner previously selected

  10. For Local ΔX enter 110 mm

  11. For Local ΔY enter -100

  12. Select enter point or press 'Enter' multiple times



Moving the square base for the main passage (part 1)





  1. Press 'R' then 'E' or select the Rectangle icon (Rectangle tool icon )

  2. Select the corner highlighted above

  3. For Local ΔX enter 5520mm

  4. For Local ΔY enter -1200 mm

  5. For Local ΔZ enter 0 mm

  6. Press 'Enter' confirming each option or select enter point

  7. Select newly created rectangle

  8. Press 'M' then 'V' or select the Move tool icon (Move tool icon )

  9. Press 'Enter' point or press 'Enter' multiple times



Moving the Rectangle base for the main passage (part 2)





  1. Press 'R' then 'E' or select the Rectangle icon (Rectangle tool icon )

  2. Select the corner highlighted

  3. For Local ΔX enter 2190mm

  4. For Local ΔY enter -2120mm

  5. For Local ΔX enter 0 mm

  6. Press 'Enter' confirming each option or select enter point



Step 5: placing ‘windows’ and ‘doors’



A note on how items are named in this tutorial



In 2D Drafting you create objects that represent views of actual objects as FreeCAD has actual objects which are categorised as walls, windows etc.

I will instead refer to their 2D representations with quotation marks to avoid confusion between Arch objects and Draft objects



Placing ‘window’ w5 at point 1





  1. Navigate to the list of windows and doors

  2. Select w5 as indicated above using Combo View>Model/blocks to display the list of objects in the drawing which you loaded at the beginning of tutorial 2

  3. Make sure Point Snap(Snap end Point icon )

  4. Press 'M' then 'V' or select the Move tool icon(Move tool icon ) and select the object at the point shown above

  5. Select the point labelled 1 (using Combo View>Model/points)



Next place ‘window’ w5 at point 2 following steps above



Placing ‘door’ d14





  1. Select the block labelled d14 and press 'M' then 'V' or select the Move tool icon (Move tool icon )

  2. Select the point on d14 as shown in the image above

  3. Navigate to Combo View>Tasks then select move, then select copy or press 'P'

  4. Select point 2

  5. Navigate back to the list of doors and windows using the preferred navigational style (Tutorial 01)



Placing ‘window’ w4 at point 3





  1. Select the block labelled w4

  2. Press ‘M’ then ‘V’ or select the Move tool icon ( )

  3. Select the point shown in the image above

  4. Select the point 3



Placing ‘window’ w3 at point 4





  1. Select w3

  2. Press ‘M’ then ‘V’ or select the Move tool icon ( )

  3. Select the point on w3 shown above

  4. Select point 4



Placing ‘window’ w2 at point 5



Improve image


  1. Select w2

  2. Press ‘M’ then ‘V’ or select the Move tool icon ( )

  3. Select the corner as shown in the image above

  4. Select point 5



Place ‘window’ w6 at point 7





  1. Select w6

  2. Press ‘M’ then ‘V’ or select the Move tool icon ( )

  3. Select the point as shown in the image above

  4. Select point 7



Placing ‘window’ w7 at point 8





  1. Select w7

  2. Press ‘M’ then ‘V’ or select the Move tool icon ( )

  3. Select the point as shown in the image above

  4. Select point 8



Placing ‘window’ w8 at point 16





  1. Select w8

  2. Press ‘M’ then ‘V’ or select the Move tool icon ( )

  3. Select the point as shown in the image above

  4. Select point 16



Placing ‘window’ w9 at point 17





  1. Select w9

  2. Press ‘M’ then ‘V’ or select the Move tool icon ( )

  3. Select the point as shown in the image above

  4. Select point 17



Placing ‘door’ d8 at point 9





  1. Select d8

  2. Press ‘M’ then ‘V’ or select the Move tool icon ( )

  3. Select the point as shown in the image above

  4. Select point 9



Placing ‘door’ d10 at point 19





  1. Select d10

  2. Press ‘M’ then ‘V’ or select the Move tool icon ( )

  3. Select the point as shown in the image above

  4. Select point 19



Placing ‘door’ d9 at point 20





  1. Select d9

  2. Press ‘M’ then ‘V’ or select the Move tool icon ( )

  3. Select the point as shown in the image above

  4. Select point 20



Placing ‘doord12 at point 21





  1. Select d12

  2. Press ‘M’ then ‘V’ or select the Move tool icon ( )

  3. Select the point as shown in the image above

  4. Select point 21



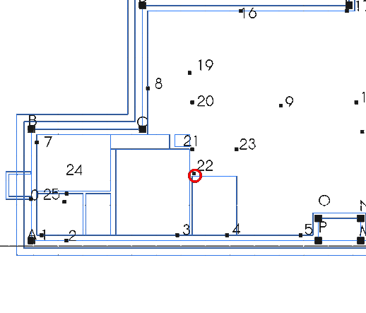
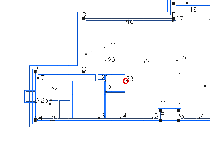
Placing ‘door’ d13 at point 22





  1. Select d13

  2. Press ‘M’ then ‘V’ or select the Move tool icon ( )

  3. Select the point as shown in the image above

  4. Select point 22



Placing ‘door’ d11 at point 23





  1. Select d11

  2. Press ‘M’ then ‘V’ or select the Move tool icon ( )

  3. Select the point as shown in the image above

  4. Select point 23



Placing ‘door’ d2 at point 12





  1. Select ‘d2’

  2. Press ‘M’ then ‘V’ or select the Move tool icon ( )

  3. Select the point as shown in the image above

  4. Select point 12



Placing ‘door’ d1 at point 13





  1. Select d1

  2. Press ‘M’ then ‘V’ or select the Move tool icon ( )

  3. Select the point as shown in the image above

  4. Select point 13



Placing ‘door’ d7 at point 14





  1. Select d7

  2. Press ‘M’ then ‘V’ or select the Move tool icon ( )

  3. Select the point as shown in the image above

  4. Select point 14



Placing ‘door’ d3 at point 26





  1. Select d3

  2. Press ‘M’ then ‘V’ or select the Move tool icon ( )

  3. Select the point as shown in the image above

  4. Select point 26



Step 6: creating the external ‘walls’



Creating outer ‘walls’ part 1 at point A





See task 3 of fc-02.html



  1. Pan and zoom to point 'A' as above

  2. Press 'P' then 'Y' or select the Polyline icon (Polyline tool icon ); using Snap Points select the vertexes as shown above (making sure to create a closed loop), this creates a wire

  3. Select the wire with your cursor in the Combo View menu press 'T' then 'G'; this navigates to objects selected in Combo View>Model (note: newly created items occur in order in Combo View>Model so by default the polyline will be at the bottom of the list)

  4. Navigate to Combo View>Model>Data>Draft

  5. Select the Make face property and pick true (this gives the created wire a fill which will be useful later for hatching)

  6. Select the newly created wire

  7. Option click with the cursor

  8. Navigate to >Utilities>move to group>add new named group

  9. Combo View>Tasks>Add group

  10. Enter the group name 'walls' and select 'ok'



Creating outer 'walls' at points B and C (part 2)





  1. Pan and zoom so that you can view both points; 'B' and 'C'

  2. Press 'P' then 'Y' or select the Polyline icon (Polyline tool icon )

  3. using Snap Points select the vertexes as shown above

  4. Select the wire with your cursor (in the Combo View menu press 'T then 'G' this navigates to objects selected in the Combo View

  5. Combo View>Model>Data>Draft

  6. Select the Wire

  7. Option click with the cursor

  8. Utilities>move to group>Walls

  9. Select Walls

  10. If you have trouble selecting the polyline you can more easily select it in the Combo View



See task 3 of fc-02.html



Creating outer ‘walls’ at points C and D (part 3)





  1. Pan and zoom so that you can view both points: 'C' and 'D'

  2. Press 'P' then 'Y' or select the Polyline icon (Polyline tool icon ); using Snap Points select the vertexes as shown above

  3. Select the wire with your cursor (in the Combo View menu press 'T' then 'G' this navigates to objects selected in Combo View>Models

  4. Navigate to Combo View>Model>Data>Draft

  5. Select the newly created Wire

  6. Option click with the cursor Navigate to >Utilities>move to group and select the group created called 'walls'

  7. If you have trouble selecting the polyline you can more easily select it in the Combo View



Creating outer 'walls' at points D and E (part 4)





  1. Pan and zoom so that you can view both points: 'D' and 'E'

  2. Press 'P' then 'Y' or select the Polyline icon (Polyline tool icon ); using Snap Points select the vertexes as shown above

  3. Select the wire with your cursor (in the Combo View menu press 'T' then 'G' this navigates to objects selected in Combo View>Models

  4. Navigate to Combo View>Model>Data>Draft

  5. Select the newly created Wire

  6. Option click with the cursor Navigate to utilities >move to group and select the group created called 'walls'



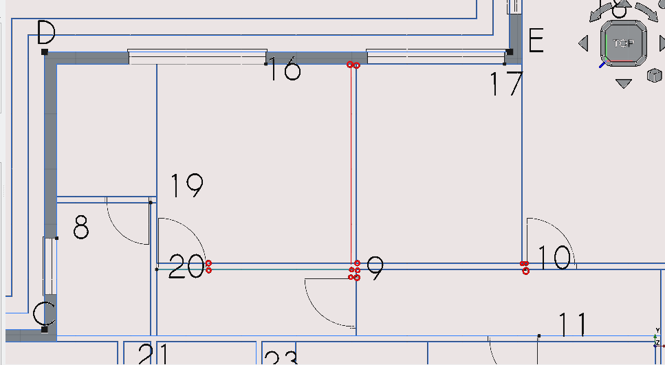
Creating outer 'walls' at points E and F (part 5)





  1. Pan and zoom so that you can view both points: 'E' and 'F'

  2. Press 'P then 'Y' or select the Polyline icon (Polyline tool icon ); using Snap Points select the vertexes as shown above

  3. Select the wire with your cursor (in the Combo View menu press 'T' then 'G' this navigates to objects selected in the Combo View)

  4. Navigate to Combo View>Model>Data>Draft

  5. Select the Wire

  6. Option click with the cursor

  7. Navigate to >Utilities>move to group

  8. Select 'walls'



Creating outer 'walls' at points E, F, G and H (part 6)





  1. Pan and zoom so that you can view points; E, F, G and H

  2. Press 'P 'then 'Y' or select the Polyline icon (Polyline tool icon ); using Snap Points select the vertexes as shown above

  3. Select the wire with your cursor; in the Combo View menu press 'T' then 'G' this navigates to objects selected in the Combo View

  4. Navigate to Combo View>Model>Data>Draft

  5. Select the Wire

  6. Option click with the cursor

  7. Navigate to >Utilities>move to group

  8. Select the group labelled 'walls'



Creating outer 'walls' at point J (Part 7)





  1. Pan and zoom so that you can view point J

  2. Press 'R' then 'E' or select the Rectangle icon (Rectangle tool icon )

  3. Select any two points circled above

  4. Select the newly created Rectangle

  5. Option click with the cursor

  6. Navigate to >Utilities>move to group and select the group labelled 'walls'



Creating outer 'walls' at point J (Part 8)





  1. Pan and zoom so that you can view points 12 and 13

  2. Press ‘R’ then ‘E’ or select the rectangle icon ( )

  3. Select the two points circled in the image above

  4. Select the newly created rectangle

  5. Navigate to Combo View>Model

  6. Select the newly created with your cursor; in Combo View menu model press ‘T’ then ‘G’ this navigates to objects selected in the Combo View

  7. Navigate to Combo View>Model>Data

  8. Set Make face property to true

  9. Select the newly created rectangle

  10. Option click with the cursor

  11. Navigate to >Utilities>move to group

  12. Select the group labelled ‘walls’



Creating external ‘walls’ at points J, 12, K, L and 6 (part 9)





  1. Pan and zoom so that you can view points 12 and 13

  2. Press 'R' then 'E' or select the Rectangle icon (Rectangle tool icon )

  3. Select the two points circled in the image above

  4. Select the newly created Rectangle

  5. Navigate to Combo View>Model

  6. Select the newly created Rectangle with your cursor; in Combo View>Model press 'T' then 'G' this navigates to objects selected in the Combo View

  7. Navigate to Combo View>Model>Data

  8. Set Make face property to true

  9. Select the newly created Rectangle

  10. Option click with the cursor

  11. Navigate to >Utilities>move to group

  12. Select the group labelled 'walls'



Creating outer ‘walls’ at points; J , N, M, 12 and 6 (part 10)





  1. Pan and zoom so that you can view points 'J', 'N', 'M', '12' and '6'

  2. Press 'P 'then 'Y' or select the Polyline icon (Polyline tool icon )

  3. Using Snap Points select the vertexes as shown above

  4. To maintain a straight line you may restrict drawing a line by for example pressing 'X' to restrict the line in to the x-axis or 'Y' for the y- axis etc

  5. Select the newly created wire

  6. Navigate to Combo View>Data>Draft

  7. Set the Make face property to true

  8. Select the Wire

  9. Option click with the cursor

  10. Navigate to >Utilities>move to group

  11. Select the group labelled 'walls'



Creating outer ‘walls’ at points; 5 , P, O, N and M (part 11)





  1. Pan and zoom so that you can view points; 5, P, O, N and M

  2. Press 'P' then 'Y' or select the Polyline icon (Polyline tool icon ) using Snap Points select the circled vertexes as shown above

  3. Select the newly created wire

  4. Navigate to Combo View>Data>Draft

  5. Set the Make face property to true

  6. Select the Wire

  7. Option click with the cursor

  8. Navigate to >Utilities>move to group

  9. Select the group labelled 'walls'



Creating outer ‘walls’ at point 4 (part 12)





  1. Pan and zoom so that you can view point 4

  2. Press ‘R’ then ‘E’ or select the rectangle icon ( )

  3. Select the two points circled in the image above

  4. Select the newly created rectangle

  5. Navigate to Combo View>Model

  6. Select the newly created with your cursor; in Combo View>Model press ‘T’ then ‘G’: this navigates to objects selected in the Combo View

  7. Navigate to Combo View>Model>Data>

  8. Set the Make face property to true

  9. Select the newly created rectangle

  10. Option click with the cursor

  11. Navigate to >Utilities>move to group

  12. Select the group labelled ‘walls’



Creating outer ‘walls’ at point 3 (part 13)





  1. Pan and zoom so that you can view point 3

  2. Press 'R' then 'E' or select the Rectangle icon (Rectangle tool icon )

  3. Select the two points circled in the image above

  4. Select the newly created Rectangle

  5. Navigate to Combo View>Model

  6. Select the newly created with your cursor; in Combo View>Model press 'T' then 'G': this navigates to objects selected in the Combo View

  7. Navigate to Combo View>Model>Data>

  8. Set the Make face property to true

  9. Select the newly created Rectangle

  10. Option click with the cursor

  11. Navigate to >Utilities>move to group

  12. Select the group labelled 'walls'



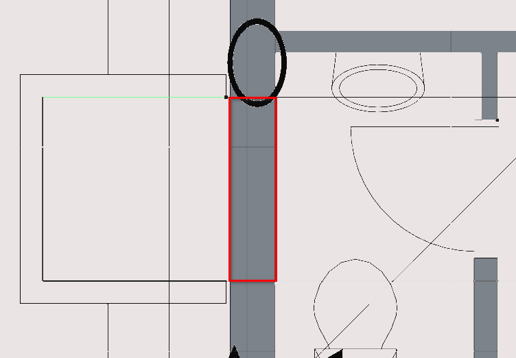
Creating outer ‘walls’ between d16 and w4 (part 14)





  1. Pan and zoom so that you can view d16 and w4

  2. Press 'R' then 'E' or select the Rectangle icon (Rectangle tool icon )

  3. Select the two points circled in the image above

  4. Select the newly created Rectangle

  5. Navigate to Combo View>Model

  6. Select the newly created with your cursor; in Combo View>Model press 'T' then 'G'

  7. Navigate to Combo View>Model>Data>

  8. Set the Make face property to true

  9. Select the newly created Rectangle

  10. Option click with the cursor

  11. Navigate to >Utilities>move to group

  12. Select the group labelled 'walls'



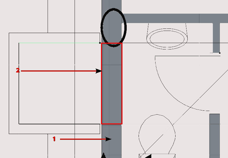
Creating outer ‘walls’ at points; 1 and 2 (part 15)





  1. Pan and zoom so that you can view points 1 and 2

  2. Press ‘R’ then ‘E’ or select the rectangle icon ( )

  3. Select the two points circled in the image above

  4. Select the newly created rectangle

  5. Navigate to Combo View>Model

  6. Select the newly created with your cursor; in Combo View menu model press ‘T’ then ‘G’

  7. Navigate to Combo View>Model>Data

  8. Set the Make face property to true

  9. Select the newly created rectangle

  10. Option click with the cursor

  11. Navigate to >Utilities>move to group

  12. Select the group labelled ‘walls’



Step 7: creating inner ‘walls’



Creating inner ‘walls’ between points; 8 and 19 (part 1)





  1. Pan and zoom so that you can view points; 8, 19, and 20

  2. Press 'R' then 'E' or select the Rectangle icon (Rectangle tool icon )

  3. Select the two points circled in the image above

  4. Select the newly created Rectangle

  5. Navigate to Combo View>Model

  6. Select the newly created with your cursor; in Combo View>Model press 'T' then 'G’

  7. Navigate to Combo View>Model>Data

  8. Set the Make face property to true

  9. Select the newly created Rectangle

  10. Option click with the cursor

  11. Navigate to >Utilities>move to group

  12. Select the group labelled 'walls'



Creating ‘walls’ between points; C,8, 19, 20 (part 2)





  1. Pan and zoom so that you can view points; C, 8, 19 and 20

  2. Press ‘P’ then ‘Y’ or select the Polyline icon ( ); using Snap Points select the circled vertexes as shown above

  3. Select the newly created wire

  4. Navigate to Combo View>Data>Draft

  5. Set the Make face property to true

  6. Select the created Wire

  7. Option click with the cursor

  8. Navigate to >Utilities>move to group

  9. Select the group labelled 'walls'



Creating ‘walls’ between points; C, 20, 16, 9 and 10 (part 3)





  1. Pan and zoom so that you can view points; 20, 16, 9 and 10

  2. Press 'P' then 'Y' or select the Polyline icon (Polyline tool icon ); using Snap Points select the circled vertexes as shown above

  3. Select the newly created wire

  4. Navigate to Combo View>Data>Draft

  5. Set the Make face property to true

  6. Select the created Wire

  7. Option click with the cursor

  8. Navigate to >Utilities>move to group

  9. Select the group labelled 'walls'



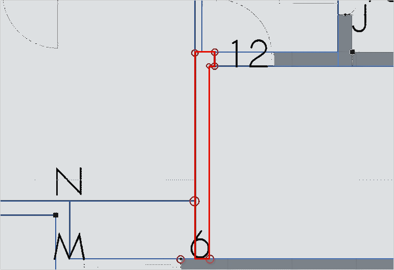
Creating ‘walls’ between points; 6, L, K, J and 12 (part 4)





  • Pan and zoom so that you can view points; 6, L, K, J and 12

  • Press 'P' then 'Y' or select the Polyline icon (Polyline tool icon ); using Snap Points select the circled vertexes as shown above

  • Select the newly created wire

  • Navigate to Combo View>Data>Draft

  • Set the Make face property to true

  • Select the created Wire

  • Option click with the cursor

  • Navigate to >Utilities>move to group

  • Select the group labelled 'walls'



Creating ‘walls’ between points 10 and C3 (part 5)





  1. Pan and zoom so that you can view points; 10 and C3

  2. Press 'R' then 'E' or select the Rectangle icon (Rectangle tool icon )

  3. Select the two points circled in the image above

  4. Select the newly created Rectangle

  5. Navigate to Combo View>Model

  6. Select the newly created with your cursor; in Combo View>Model press 'T' then 'G'

  7. Navigate to Combo View>Model>Data

  8. Set the Make face property to true

  9. Select the newly created Rectangle

  10. Option click with the cursor

  11. Navigate to >Utilities>move to group

  12. Select the group labelled 'walls'



Going forward with creating walls (part 6)



By now you may have noticed a pattern in creating a ‘wall’ :

  1. create a polyline, rectangle etc (any geometry with a closed loop)

  2. Set the show face properties under Combo View>Data to true

  3. Add the created geometry to the ‘walls’ group

  4. From now the steps for this particular task (creation of ‘walls’ will be minimal)

  • Feel free to experiment with the different approaches of creating 2D geometry shown in the prior section on creating geometry







  1. Use the polyline tool to trace the closed loops shown in red

  2. Adjust each ‘show face’ property to true for each wire

  3. Add the created wires to the group labelled ‘walls’



Creating the remaining internal walls (part 7)





  • Repeat the previous steps to trace the closed loops in red shown above



Placing block v1





  • Select the object labelled v1 and use the move tool to place it at the point labelled c3



Step 7: creating ‘columns’



Creating a column at C1 (part 1)





  1. Press ‘C’ then ‘I’ or select the circle icon ( )

  2. Select point C1

  3. Navigate to Combo View>Tasks

  4. Set the radius to 150 mm

  5. Press 'Enter'/ select 'Ok'

  6. Navigate to Combo View>Data

  7. Set the face value property to false



Creating a column at C2 (part 2)




last

  • Press ‘C’ then ‘I’ or select the circle icon ( )

  • Select point C2

  • Navigate to Combo View>Tasks

  • Set the radius to 150 mm

  • Press 'Enter' or select 'Ok'

  • Navigate to Combo View>Data

  • Set the face value property to false

next


Step 8: creating the ‘roof’



Creating a 45° line at point A (part 1)



  1. Start construction mode by pressing ‘C’ then ‘M’ or by selection the construction mode icon ( )

  2. Press ‘L then ‘I’ or select the Line tool icon ( )

  3. Select point A

  4. Navigate to Combo View>Tasks

  5. Select the angle check box

  6. Set the angle to 45°

  7. Select with the mouse arbitrarily far outside the building footprint





Creating a 45° line at point B (part 2)





  1. Press ‘L then ‘I’ or select the Line tool icon ( )

  2. Select point B

  3. Navigate to Combo View>Tasks

  4. Select the angle check box

  5. Set the angle to 45°

  6. Select with the mouse arbitrarily far outside the building footprint



Creating a 45° line at point C (part 3)





  1. Press ‘L then ‘I’ or select the Line tool icon ( )

  2. Select point C

  3. Navigate to Combo View>Tasks

  4. Select the angle check box

  5. Set the angle to 45°

  6. Select with the mouse arbitrarily far outside the building footprint



Creating a 45° line at point D (part 4)





  1. Press ‘L then ‘I’ or select the Line tool icon ( )

  2. Select point C

  3. Navigate to Combo View>Tasks

  4. Select the angle check box

  5. Set the angle to 45°

  6. Select with the mouse arbitrarily far outside the building footprint



Creating a 45° line at point E (part 5)



Crop picture


  1. Press ‘L then ‘I’ or select the Line tool icon ( )

  2. Select point E

  3. Navigate to Combo View>Tasks

  4. Select the angle check box

  5. Set the angle to 45°

  6. Select with the mouse arbitrarily far outside the building footprint



Creating a 45° line at point F (part 6)





  1. Press ‘L then ‘I’ or select the Line tool icon ( )

  2. Select point F

  3. Navigate to Combo View>Tasks

  4. Select the angle check box

  5. Set the angle to 45°

  6. Select with the mouse arbitrarily far outside the building footprint



Creating a 45° line at point G (part 7)





  1. Press ‘L then ‘I’ or select the Line tool icon ( )

  2. Select point G

  3. Navigate to Combo View>Tasks

  4. Select the angle check box

  5. Set the angle to 45°

  6. Select with the mouse arbitrarily far outside the building footprint



Creating a 45° line at point H (part 8)





  1. Press 'L then 'I' or select the Line tool icon (Line tool icon )

  2. Select point H

  3. Navigate to Combo View>Tasks

  4. Select the angle check box

  5. Set the angle to 45°

  6. Select with the mouse arbitrarily far outside the building footprint



Creating a 45° line at point C1 (part 9)





  1. Press 'L then 'I' or select the Line tool icon (Line tool icon )

  2. Select point C1

  3. Navigate to Combo View>Tasks

  4. Select the angle check box

  5. Set the angle to 45°

  6. Select with the mouse arbitrarily far outside the building footprint

  7. You may extend and trim lines using the trim tool (Trim tool icon ): (see using the trim tool: holding Ctrl will snap the trimmed lines end to a Snap Point, pressing ‘alt’ inverts the trim or extensions direction)



Creating a 45° angle at point L (part 10)





  1. Press ‘L’ then ‘I’ or select the Line tool icon ( )

  2. Select point L

  3. Navigate to Combo View>Tasks

  4. Select the angle check box

  5. Set the angle to 45°

  6. Select with the mouse arbitrarily far outside the building footprint



Creating a 45° angle at point L (part 11)





Use the trim tool to extend the 45° lines beyond the boundaries of the construction roofline See the section on 'using the trim tool' (holding Ctrl will snap the lines being trimmed to Snap Points; Pressing ‘Alt' inverts the trim or extensions direction). The procedure for extending a line is as follows;

  1. Select the line that is to be extended

  2. Press 'T' then 'R' or select the trim tool icon (Trim tool icon )

  3. Select anywhere outside the boundaries of the building footprint



Drawing a horizontal line from an intersection point of 2 lines (part 12)





  1. Ensure that the Intersection Snap toggle is on

  2. Ensure that Construction Mode is toggled on (Line tool icon ) and hover your mouse over the intersecting lines until the Snap Intersection icon (Snap Intersection tool icon ) appears then select the vertex with the cursor

  3. Press 'X' to constrain the line in the x-axis

  4. Select outside the building footprint



Drawing a line from points c to d and moving it (part 13)





  1. Press 'L' then 'I' or select the Line tool icon (Line tool icon );hover the mouse over c until the End Point Snap icon (Snap Endpoint icon ) appears and select it do the same at c

  2. Navigate to Combo View>Model/Construction

  3. Select the last line object in the group

  4. Select the line and press 'M' then 'V'

  5. Press 'X'

  6. Navigate to Combo View>Tasks

  7. For Local ΔX enter in 3500 mm

  8. Press 'Enter' or select enter point



Drawing a line from points (part 14)





  1. Press ‘L then ‘I’ or select the Line tool icon ( )

  2. Hover the mouse over the intersection circled in red and select the point (the Snap Intersection icon will (Snap Intersection tool icon ) appear when hovering over the intersection)



Making a line between points; C1 and L and offsetting it



(image must show c1 and L!)


  1. Press ‘L then ‘I’ or select the Line tool icon ( )

  2. Select point L

  3. Press ‘Y’ and select C1 (using Snap Points)

  4. Navigate to Combo View>Model>/Construction folder)

  5. Select the newly created line

  6. Press ‘O’ then ‘S’ then place the mouse cursor to the left side of the object

  7. Navigate to Combo View>Tasks (don’t move the mouse as this decides in which direction the line will be offset)

  8. Type -3500mm for the offset distance

  9. Press 'Enter'



Creating a line between F and C3





  • Ensure that Snap Points are on, the most important of which would be Snap Intersection (Snap Intersection tool icon )

  • Press 'L' then 'I' or select the Line tool icon (Line tool icon )

  • Select the two points highlighted red and displayed above



Step 9: tracing construction lines to create the ‘roof’



Creating a polyline for the ‘roof’ (part 1)





  1. Press 'C' then 'M' or select the construction mode toggle icon (Construction tool icon )

  2. Press 'P' then 'Y' or select the Polyline icon (Polyline tool icon )and select the points to the left with Point Snap

  3. Press 'Esc'

  4. Option click the newly created polyline with the cursor

  5. Select >Utilities>add to new named group

  6. Type 'roof' in the pop-up menu (this creates a new named group called ‘roof’)

  7. Press 'Enter'



Creating a polyline for the ‘roof’ (part 2)





  1. Press 'P 'then 'Y' or select the Polyline icon (Polyline tool icon ) and select the points shown in the image above

  2. Press 'Esc'

  3. Option click the polyline with the mouse and select >Utilities>add to group then select roof



Creating a polyline for the ‘roof’ (part 3)





  1. Press ‘P’ then ‘Y’ and select the points shown in the image above

  2. Press 'Esc'

  3. Option click the polyline with the mouse and select >Utilities>add to group then select roof



Creating a polyline for the ‘roof’ (part 4)





  1. Press ‘P’ then ‘Y’ or select the Polyline icon ( ) and select the points shown in the image above

  2. Press 'Esc'

  3. Option click the polyline with the mouse and select >Utilities>add to group then select roof



Creating a line between C3 and j (part 5)





  • Press ‘P’ then ‘Y’ or select the Polyline icon ( ) and select the points shown in the image above

  • Press 'Esc'

  • Option click the polyline with the mouse and select >Utilities>add to group roof



Creating a polyline for the overall roof line (part 6)





  • Press ‘P’ then ‘Y’ or select the Polyline icon ( )

  • Ensure Point Snap is on. Select all the points shown above

  • Press 'Esc'



Hiding construction lines (part 7)





  1. Navigate to Combo View>Model

  2. Select the group labelled ‘construction’

  3. Press the Spacebar



Grouping the items representing the ‘roof’ (part 8)





  1. Select any of the remaining polylines and lines shown above

  2. Option click and select ‘move to named group’ and select the group labelled ‘roof’



Creating the ‘slab’ (part 9)





  • Press ‘P’ then ‘Y’ or select the Polyline icon ( ) and draw the shape shown above using what you have learned so far



Step 10: placing furniture blocks



Placing the sink block (part 1)





  1. Press ‘M’ then ‘V’ or select the Move tool icon ( )

  2. Select the block shown above

  3. Select the point to move it from (The midpoint circled in red)

  4. Select the copy option or press ‘P’ (Combo View>Task>Move): note this option stays on until toggled off when using the move tool





  1. Pan such that the objects shown above are in view

  2. Hover the mouse near the point shown above (the mid point of the wall) until the Snap Midpoint icon ( ) appears

  3. Then select with your mouse



Placing the toilet block (part 2)





  1. Press ‘M’ then ‘V’ or select the Move tool icon ( )

  2. Select the block shown above

  3. Select the point to move it from (The midpoint circled in red)

  4. Select the copy option or press ‘P’ (Combo View>Task>Move)





  1. Pan so that the objects shown above are in view

  2. Select the circled point shown above



Placing the kitchen cabinetry and sink block (part 3)





  1. Press ‘M’ then ‘V’ or select the Move tool icon ( )

  2. Select the block shown above

  3. Select the point to move it from (The midpoint circled in red)





  1. Pan so that the objects shown above are in view

  2. Select the circled point shown above



Placing the bathtub block (part 4)





  1. Press ‘M’ then ‘V’ or select the Move tool icon ( )

  2. Select the block shown above

  3. Select the point to move it from (The midpoint circled in red)

  4. Select the copy option or press ‘P’ (Combo View>Task>Move)





  1. Pan so that the objects shown above are in view

  2. Select the circled point shown above



Placing the sink block (part 5)





  1. Press ‘M’ then ‘V’ or select the Move tool icon ( )

  2. Select the block shown above

  3. Select the copy option or press ‘P’ (Combo View>Task>Move)

  4. Select the point to move it from (The midpoint circled in red)





  1. Press 'T' or select the continue check box under Combo View>Tasks>Move (this allows for objects to be moved multiple times without having to select the move tool multiple times)

  2. Select the top right most point of the bathtub block (displayed above)

  3. Combo View>Tasks

  4. Toggle the continue check box under Combo View>Tasks>Move or press 'T'

  5. Press 'Y'

  6. For Local ΔY type in 145 mm

  7. Press 'Enter' or select enter point



Placing the toilet (part 6)





  1. Press ‘M’ then ‘V’ or select the Move tool icon ( )

  2. Select the block shown above

  3. Select the point indicated above

  4. Select the copy option or press ‘P’ (Combo View>Task>Move)





  1. Press ‘T’ or select the continue check box under Combo View>Tasks>Move (this allows for objects to be moved multiple times without having to select the move tool multiple times)

  2. Select the top right most point of the bathtub block (displayed above)

  3. Combo View>Tasks

  4. Uncheck the continue check box under Combo View>Tasks>Move or press ‘T’

  5. Navigate to Combo View>Tasks>Move

  6. For ‘Local ΔX’ type in 245 mm

  7. For ‘Local ΔY’ type in 72 mm

  8. Press 'Enter' or select enter point



Placing the kitchen counter block (part 7)





  1. Press ‘M’ then ‘V’ or select the Move tool icon ( )

  2. Select the copy option or press ‘P’ (Combo View>Task>Move)

  3. Select the block shown above

  4. Select the point indicated above

  5. Select the copy option or press ‘P’ (Combo View>Task>Move)





  1. Select the point indicated above





  1. Press ‘M’ then ‘V’ or select the Move tool icon ( )

  2. Select the copy option or press ‘P’ (Combo View>Task>Move)

  3. Select the block shown above

  4. Select the point indicated above

  5. Press ‘T’ or select the continue check box under Combo View>Tasks





  1. Pan so that the objects shown above are in view

  2. Select the circled point shown above

  3. Press ‘T’ or select the continue check box under Combo View>Tasks





  1. Select the point shown above

  2. Press ‘X’ and select the ‘walls’ edge



Moving the sink block (part 8)





  1. Press ‘M’ then ‘V’ or select the Move tool icon ( )

  2. Select the copy option or press ‘P’ (Combo View>Task>Move)

  3. Select the block shown above

  4. Select the point indicated above

  5. Press ‘T’ or select the continue check box under Combo View>Tasks



Moving the toillet block (part 9)





  1. Press ‘M’ then ‘V’ or select the Move tool icon ( )

  2. Select the copy option or press ‘P’ (Combo View>Task>Move)

  3. Select the block shown above

  4. Select the point indicated above

  5. Press ‘T’ or select the continue check box under Combo View>Tasks





  1. Select the WC block and press ‘R’ then ‘O’

  2. Navigate to Combo View>Tasks> rotate

  3. For the ‘rotation angle’ enter 270°

  4. Navigate to Combo View>Tasks> rotate

  5. Enter 270°

  6. Press 'Enter' 3 times



Placing and rotating the bathtub block (part 10)





  1. Select the bathtub block

  2. Press ‘R’ then ‘O’

  3. Navigate to Combo View>Tasks>rotate

  4. Select the copy option or press ‘P’ (Combo View>Task>Move)

  5. Under rotation enter 270°

  6. Press 'Enter'

  7. Under rotation enter 270 again





  1. Press 'T' or select the continue check box under Combo View>Tasks

  2. Press 'P' or select the copy option (Combo View>Task>Move)

  3. Select the point near point C shown in the image above

  4. Press 'T' or select the continue check box under Combo View>Tasks

  5. Press 'P' or select the copy option (Combo View>Task>Move)

  6. Select the same point near point C

  7. Navigate to Combo View>Task

  8. For Local ΔX enter 20mm

  9. For Local ΔY enter 20mm

  10. Now that the blocks have been added to the floor plan select them and add them to a group

  11. Create a group called 'windows' and add the window blocks

  12. Create a group called 'doors' and add all the doorblocks

  13. Create a group called 'utility' and add the bathtub, toilet, washbasin and cabinetry blocks to it. Hint: groups can be created by selecting the create group icon (AddToGroup tool icon ) or by option clicking on the file name in Combo View>Model and selecting 'create group'. Items can be added to groups by selecting them in Combo View>Model and option clicking and selecting >move to group or by selecting the object itself in the view



Step 11: creating a cut



Creating a cut: Creating lines to serve as a reference (part 1)





  1. Create two lines extending from the block

  2. Make sure they cross over the ‘wall’ shown above



Creating a cut: Creating a rectangle (part 2)





  • Draw a rectangle where the lines and the ‘wall’ intersect





  1. Hold Ctrl

  2. Select the 'wall' first

  3. Select the 'Rectangle'

  4. Release Ctrl

  5. Select the Downgrade icon ( )

  6. This subtracts Draft objects from each other

  7. Remember to delete the lines you use as reference earlier or add them to the construction layer by selecting them and pressing the add to construction layer icon ( )



Tutorial 02 Part c: Annotations



Step 1: annotation and using the text tool



Using the text tool



  1. Created text can be, like with other tools be used by:

  2. Shortcut:pressing 'T' then 'E' or by selecting the Text icon (Text tool icon )

  3. Press select button in any position on the drawing or by entering coordinates under Combo View>Tasks>Text

  4. The text must then be typed in Combo View>Tasks>Text

  5. Pressing enter or selecting create text under Combo View>Tasks>Text will complete the task





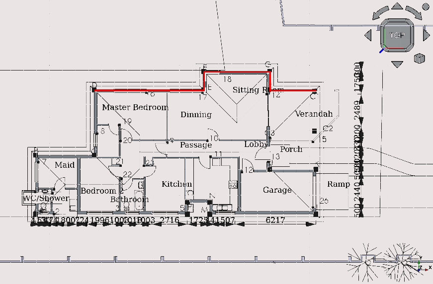
  1. Label the floor plan created in the previous steps as shown in the image above

  2. When done add all the dimensions of the floor plan into a group named ‘labels’



Creating the porch and ramp





  1. Create rectangles representing:

  • Ramp (2800 by 2500mm)

  • Porch (1671 by 1500mm)

  1. Then place them in the red highlighted positions shown in the image above



Step 2: annotation continued



Dimensioning the floor plan (part 1)





  1. Make sure Point Snap is on ( Draft snap endpoint icon )

  2. Press 'D' then 'I' or selection the Dimension tool icon ( Dimmmension tool icon )

  3. Press 'T' (to continue and do more than 1 line of dimensions)

  4. Select the first two points along the polyline highlighted in the image above; this sets the orientation of the dimension tool

  5. Select the remaining points along the polyline For example: selecting two vertexes on a line will create a dimension parallel to said line

  6. Select a suitable position for the dimensions relative to the floor plan

  7. Press 'Esc'

  8. You may also select a line before activating the dimension tool, this will create a dimension parallel to said line



Dimensioning the floor plan (part 2)





  1. Press ‘D’ then ‘I’ or selection the Dimension tool icon ( )

  2. Press ‘T’ (to continue and do more than one line of dimensions)

  3. Select the first two points along the polyline highlighted in the image above

  4. Select the remainder of the points along the line

  5. Move the cursor away from the floor plan and select a suitable position for the dimension

  6. Navigate to Combo View>Tasks>Dimension

  7. Input the desired ‘Local ΔXand Local ΔYvalues if wanted for dimension location

  8. Press 'Esc'



Dimensioning the floor plan (part 3)





  1. Press ‘D’ then ‘I’ or selection the Dimension tool icon ( )

  2. Press ‘T’ (to continue and do more than 1 line of dimensions)

  3. Select the first two points along the polyline highlighted in the image above

  4. Select the remainder of the points along the line

  5. Move the cursor away from the floor plan and select dimension position

  6. Navigate to Combo View>Tasks>Dimension

  7. Input the desired ‘Local ΔXand Local ΔYvalues for dimension location if desired

  8. Press 'Esc'



Dimensioning the floor plan (part 4)





  1. Press ‘D’ then ‘I’ or selection the Dimension tool icon ( )

  2. Turn Snap centre on ( )

  3. Press ‘T’ (to continue and do more than one line of dimensions)

  4. Select the first two points along the polyline highlighted in the image above

  5. Select the remainder of the points along the line

  6. Move the cursor away from the floor plan and select suitable dimension position

  7. Navigate to Combo View>Tasks>Dimension

  8. Input the desired ‘Local ΔXand Local ΔYvalues if desired

  9. Press 'Esc'

  • Hint: some objects require unique Snaps to interact with their geometry. In the case of circles you may want to use construction lines that run from the centre of the circle to their circumference and use the Snap Intersection ( ) Snap when dimensioning



Dimensioning the floor plan (part 5)





  1. Press 'D' then 'I' or selection the Dimension tool icon ( Dimmmension tool icon )

  2. Turn Mid Point Snap on ( )

  3. Press 'T' (to continue and do more than one line of dimensions)

  4. Select the first two points along the polyline highlighted in the image above

  5. Select the remainder of the points along the line

  6. Move the cursor away from the floor plan and select a suitable dimension position

  7. Navigate to Combo View>Tasks>Dimension

  8. Input the desired Local ΔX and Local ΔY values if desired

  9. Press 'Esc'



Dimensioning the floor plan (part 6)





  • The lines that are to be dimensioned are all at different angles. To easily dimension these objects, one can select an edge instead and then select the dimension icon or enter the shortcut

  1. Select the edge to be dimensioned

  2. Press ‘D’ then ‘I’ or selection the Dimension tool icon ( )

  3. Press ‘T’ (to continue and do more than one line of dimensions)

  4. Move the cursor away from the floor plan and select arbitrarily

  5. Navigate to Combo View>Tasks>Dimension

  6. Input the desired ‘Local ΔXand Local ΔYvalues

  7. Press ‘E’ or pick ‘select edge’

  8. Select the next edge to be dimensioned

  9. Move the cursor away from the floor plan and select arbitrarily

  10. Navigate to Combo View>Tasks> dimension

  11. Input the desired Local ΔXand Local ΔYvalues

  12. Repeat the process until you have dimensioned the edges shown above

  13. Press 'Esc'

  14. Dimensions can also be modified with the move tool.

  15. When done add all the dimensions of the floor plan into a group labelled ‘dimensions’



Tutorial 02 Part d: Style settings



Changing the style settings of text





  1. Navigate to Combo View>Model

  2. Option click on the group named ‘labels’ and select ‘add dependants to selections’

  3. Navigate to Combo View>Tasks>Style settings

  4. Select the Style settings icon ( )

  5. Set the text style to Noto Sans and the text size to 250mm

  6. Select ‘selected’

  7. Select 'Ok' or press 'Enter'



Changing the style settings of dimensions





  1. Navigate to Combo View>Model

  2. Option select the group labelled ‘dimensions’ and select ‘add dependants to selections’

  3. Select the Style settings icon ( )

  4. Set the text style to Noto Sans and the text size to 250 mm

  5. Set the arrow style to Tick-2

  6. Set extension lines to 10 mm

  7. Select ‘selected’

  8. Select 'Ok' or press 'Enter'



Changing the style settings of lines






  1. Navigate to Combo View>Model

  2. Option select the group labelled ‘roof’ and select ‘add dependants to selections’

  3. Select the Style settings icon ( )

  4. Set the draw style to dashed

  5. Select ‘selected’

  6. Select 'Ok' or press 'Enter'



Changing the style setting of wires






  1. Navigate to Combo View>Model

  2. Option select the group labelled ‘walls’ and select ‘add dependants to selections’

  3. Select the Style settings icon ( )

  4. Set the draw style to dashed

  5. Select ‘selected’

  6. Select 'Ok' or press 'Enter'

  7. Change the line width to 2 pixels



Tutorial 02 Part e: Hatching



How to hatch





  1. Select the wall shown above

  2. Press 'H' then 'A' or select the hatch icon (Hatch tool icon )

  3. Navigate to Combo View>Tasks>Hatch

  4. Set the scale to 30

  5. Leave rotation as 0

  6. Select 'Ok' or press 'Enter'

  7. Repeat these steps for the other wires in the 'walls' folder

  8. Create a folder called 'hatches' and move all the hatches to it

  9. Save the file (Ctrl+'S') navigate to file>save as (give it an appropriate name and save it in a location you can find later)



This concludes the tutorial


last

Freecad Architectural Work Tutorial

Home tutorial

Home web site

next